Your privacy is important to us. This website uses cookies to enhance user experience and to analyze performance and traffic on our website. By using this website, you acknowledge the real-time collection, storage, use, and disclosure of information on your device or provided by you (such as mouse movements and clicks). We may disclose such information about your use of our website with our social media, advertising and analytics partners. Visit our Privacy Policy and California Privacy Disclosure for more information on such sharing.
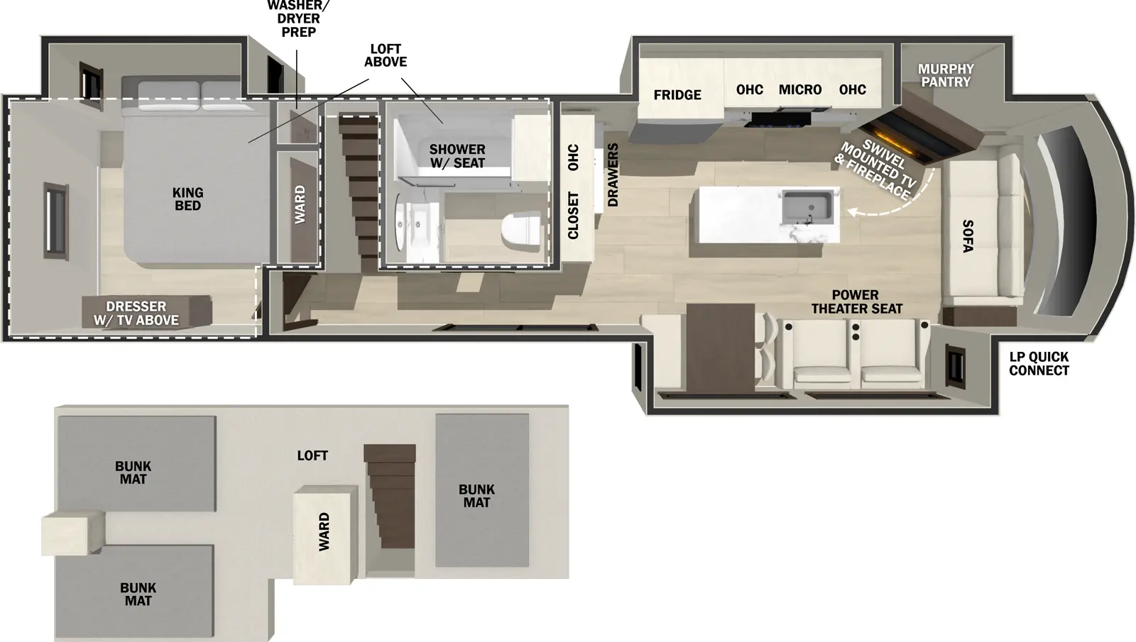
The 40CDL Cottage is an innovative bunkhouse with an upper loft that provides sleeping for three plus storage!. The rear king bedroom has its own entry/exit door for added privacy, and includes a closet with washer/dryer prep, wardrobe, and dresser with TV. The bathroom gives you a residential shower with built-in seat, skylight, and linen cabinet. The large island kitchen provides plenty of counter space and includes residential appliances and a bonus pantry.